Parašė ttttt
Rodyti pranešimą
Skelbimas
Collapse
No announcement yet.
Artery - Konstitucijos 18B
Collapse
X
-
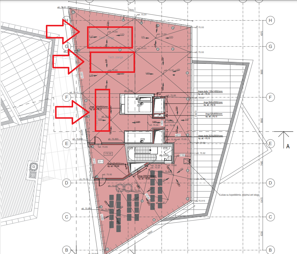
Taip, yra ir varstomų langų. Gerai dar kad tie varstomi langai su juodais rėmais ir kurie dar uždengti stiklu, ne taip krenta į akis. Dar bus balkonai ir angos ventiliacijai fasade, pačiam pastato viršuj...Parašė Obi-Wan Kenobi Rodyti pranešimąStiklas gerai atrodo, kai užsidės visas tas vaizdas bus super. Bet negi kai kur bus atidaromi langai?
Comment
-
Va, ant tavo žodžių - naujas PP viešinimas. Kadangi nemaža dalis buvusio viešbučio patalpų bus administracinės, rengia A leidimo laidą, tad viešina. Galima ir dėl to privažiavimo parašyt manau.Parašė ttttt Rodyti pranešimą
Tik dabar pastebėjau, bet ar kartais nebus čia taip, kad tas vos paryškintas keliukas taps permanentiniu parkingu?
Iš pokyčių - nebebus terasos ant vieno iš žemutinių korpusų, o pirmame aukšte atsiras komercinės patalpos ir restoranas. Plius keli smulkūs pakeitimai fasade matosi, lyg tai gerokai mažiau atidaromų langų.
https://vilnius.lt/lt/numatomo-stati...u-pristatymas/
https://vilnius.lt/wp-content/upload...s-viesinti.pdf
Comment
-
Matyt, uzsakovui svarbiau reklama.Parašė Aukselis Rodyti pranešimąMano subjektyve nuomone, negerai jog atsisakoma to elemento (grotelių/ skylių ar ko ten techninėje dalyje) šioje fasado dalyje, tai lyg tam tikras akcentas buvo..
Comment
-
Realybeje toks akcentas nebūtų taip romantiškai atrodęs.Parašė Aukselis Rodyti pranešimąMano subjektyve nuomone, negerai jog atsisakoma to elemento (grotelių/ skylių ar ko ten techninėje dalyje) šioje fasado dalyje, tai lyg tam tikras akcentas buvo..
- 3 patinka
Comment
-
Tai va tame ir reikalas, arba visur arba niekur....Parašė Edd Rodyti pranešimąTen grotelės techniniame aukšte ventiliacijai? Aš kaip tik tą vietą vertinau kaip vieną iš tų kuri gali viską gadinti, gerai jei jos nebeliks. Gaila kad grotelės išliko kitoje pusėje.Lithuanian Top 5 tallest buildings
1. Europa Tower 126 m. 33 f.
2. Pilsotas 112 m. 34 f.
3. Arfa 100 m. 29 f.
4. Helios City Tower A 96 m. 27 f.
5. Europe Square Apartments 95 m. 27 f.
Comment
-
Dėkui už nuorodas, panašu, kad deja buvau teisus. PP jau matome, kad ten yra ne šiaip keliukas, bet jau ir 3 parkavimosi vietos atsirado (kam? vat rimtai, kam?)Parašė Creatium Rodyti pranešimą
Va, ant tavo žodžių - naujas PP viešinimas. Kadangi nemaža dalis buvusio viešbučio patalpų bus administracinės, rengia A leidimo laidą, tad viešina. Galima ir dėl to privažiavimo parašyt manau.
Iš pokyčių - nebebus terasos ant vieno iš žemutinių korpusų, o pirmame aukšte atsiras komercinės patalpos ir restoranas. Plius keli smulkūs pakeitimai fasade matosi, lyg tai gerokai mažiau atidaromų langų.
https://vilnius.lt/lt/numatomo-stati...u-pristatymas/
https://vilnius.lt/wp-content/upload...s-viesinti.pdf
Na o toliau nenustebsiu, jei tas žalias plotas transformuosis pagal geriausias Šnipiškių tradicijas:
Parašė John Rodyti pranešimąCloud biurai Žalgirio g.
Renderis: nėra parkofkės nuo gatvės

Realybe: yra parkofkė nuo gatvės

#smulkūspakeitimai
- 6 patinka
Comment
-
Nenorejo panasiu gargaru ant stogo, o nori svarios "kristalo" formos, tad ir slepia viska tech. aukste po stogu, tad reikia ir groteliu.Parašė Edd Rodyti pranešimąPo paskirties pakeitimo reikėjo išvis nakinti tą privažiavimą. Kas dar nepatinka tai varstomi langai ir visokios grotelės net aukštai, kurios matysis iš toliau, pvz. nuo Balto tilto:
Paskutinis taisė RokasLT; 2022.12.16, 12:22.
Comment
-
Jos buvo ir ankstesniuose PP, tik kitoje pusėje. Bet reik prašyt, kad naikintų, nes jeigu anksčiau dar buvo logikos (viešbutis), tai dabar nelabai yra.Parašė ttttt Rodyti pranešimą
Dėkui už nuorodas, panašu, kad deja buvau teisus. PP jau matome, kad ten yra ne šiaip keliukas, bet jau ir 3 parkavimosi vietos atsirado (kam? vat rimtai, kam?)
- 2 patinka
Comment
-
Taip, suprantu kad kažkaip reikia, nors asmeniškai sakyčiau kad geriau iš paukščio skrydžio tegul matosi visokie agregatai ant stogo nei tiesiog grotelės fasade. Palyginimui kaip Swedbankas viską išslapstė:Parašė RokasLT Rodyti pranešimąNenorejo panasiu gargaru ant stogo, o nori svarios "kristalo" formos, tad ir slepia viska tech. aukste po stogu, tad reikia ir groteliu.

Swedankas sugebėjo paslėpti ir laiptinę-balkonus evakuacijai:

Kol neįjungtos šviesos gali ir neatkreipti dėmėsio:

- 6 patinka
Comment
-
Buvo galima apsieiti ir be groteliu (kaip Libeskindo dangoraizyje Milane). Is vizulkiu kazas buvo bandoma daryti, bet matyt, uzsakovas nenorejo papildomu islaidu, o groteles blogai atrodo priekiniame fasade, tad darys jas tik sone.Parašė Edd Rodyti pranešimą
Taip, suprantu kad kažkaip reikia, nors asmeniškai sakyčiau kad geriau iš paukščio skrydžio tegul matosi visokie agregatai ant stogo nei tiesiog grotelės fasade. Palyginimui kaip Swedbankas viską išslapstė:
Comment
-
Nu ko tu čia nesupranti? Nesiparink. Įsivaizduok hipotetinę situaciją: visur trūksta vietos ir atvažiouoja dar 2-3 mašinos ir nori prisiparkuoti. Jeigu laisvų parkavimo vietų niekur aplinkui nėra, tai ką jiems daryti? Važiuoti namo? O vat jei yra 3 laisvos parkavimo vietos, tai visi sėkmingai prisiparkuoja ir visiems parkavimo vietų užtenka ir visi patenkinti, nes parkavimo problemos toje vietoje nebelieka. Supranti dabar logiką?Parašė ttttt Rodyti pranešimą
Dėkui už nuorodas, panašu, kad deja buvau teisus. PP jau matome, kad ten yra ne šiaip keliukas, bet jau ir 3 parkavimosi vietos atsirado (kam? vat rimtai, kam?)
- 5 patinka
Comment
-
Skamba visai logiškai, galėjo PP iškart taip parašyt, kad nekiltų klausimų.Parašė John Rodyti pranešimą
Nu ko tu čia nesupranti? Nesiparink. Įsivaizduok hipotetinę situaciją: visur trūksta vietos ir atvažiouoja dar 2-3 mašinos ir nori prisiparkuoti. Jeigu laisvų parkavimo vietų niekur aplinkui nėra, tai ką jiems daryti? Važiuoti namo? O vat jei yra 3 laisvos parkavimo vietos, tai visi sėkmingai prisiparkuoja ir visiems parkavimo vietų užtenka ir visi patenkinti, nes parkavimo problemos toje vietoje nebelieka. Supranti dabar logiką?
- 1 patinka
Comment


Comment